Graham, NC  |  7,200 SF

Alamance Community College

Data Science & A.I. Labs

How do you create a visual identity unique to the program of AI that inspires curiosity?

Alamance Community College

Data Science &

A.I. Labs

 

The existing Biotechnology Center of Excellence Building houses Alamance Community College’s Biotechnology program. ThoughtCraft was awarded the project to convert third-floor shell space into new learning spaces for the Data Analytics and Applied Artificial Intelligence programs.

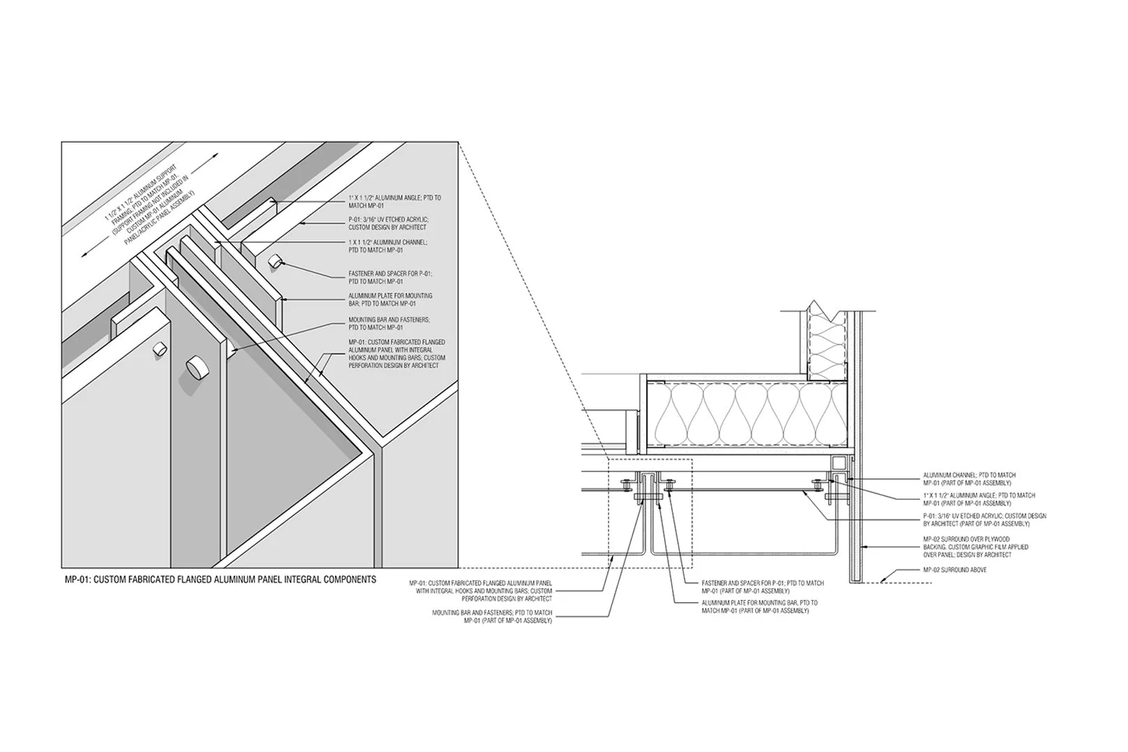
The design focuses on creating a physical expression of AI, deconstructing its fundamental attributes to convey the notion of AI and reveal its inner workings. It transforms the act of engaging with AI from a cerebral exercise into a sensory and physical experience. The wall separating the AI Lab and hallway invites users to experience the layered process of machine learning and intelligence. Included in the program are 4 general classrooms, 7 offices, a biotechnology lab, a server room, and storage.


H I G H L I G H T S 

  • Fit-out of existing space in Higher Ed

  • Working with flexible program, technology upgrades, floor plan updates, and renovations, repairs, and upgrades to existing spaces

  • Full design through construction services for state of the art A.I. lab, biotechnology lab, classrooms, and support

  • Integration of building systems and IT

  • State Construction Office review

C O L L A B O R A T O R S 

ACC Artificial Intelligence Department | ACC Biotechnology Department | ACC Information Technology Department | Salas O’Brien | Arktura


Schedule a call


More Projects

FREE RESOURCES

Whether you’re building a home, building a business, developing a community, or renovating a historic building, we have a variety of FREE guides tailored to your needs.

SEE ALL RESOURCES