Lexington, MA  |  200 SF

Sasaki House Bathrooms

How can material restraint and light transform everyday routines into a restorative experience?

Sasaki House Bathrooms

 

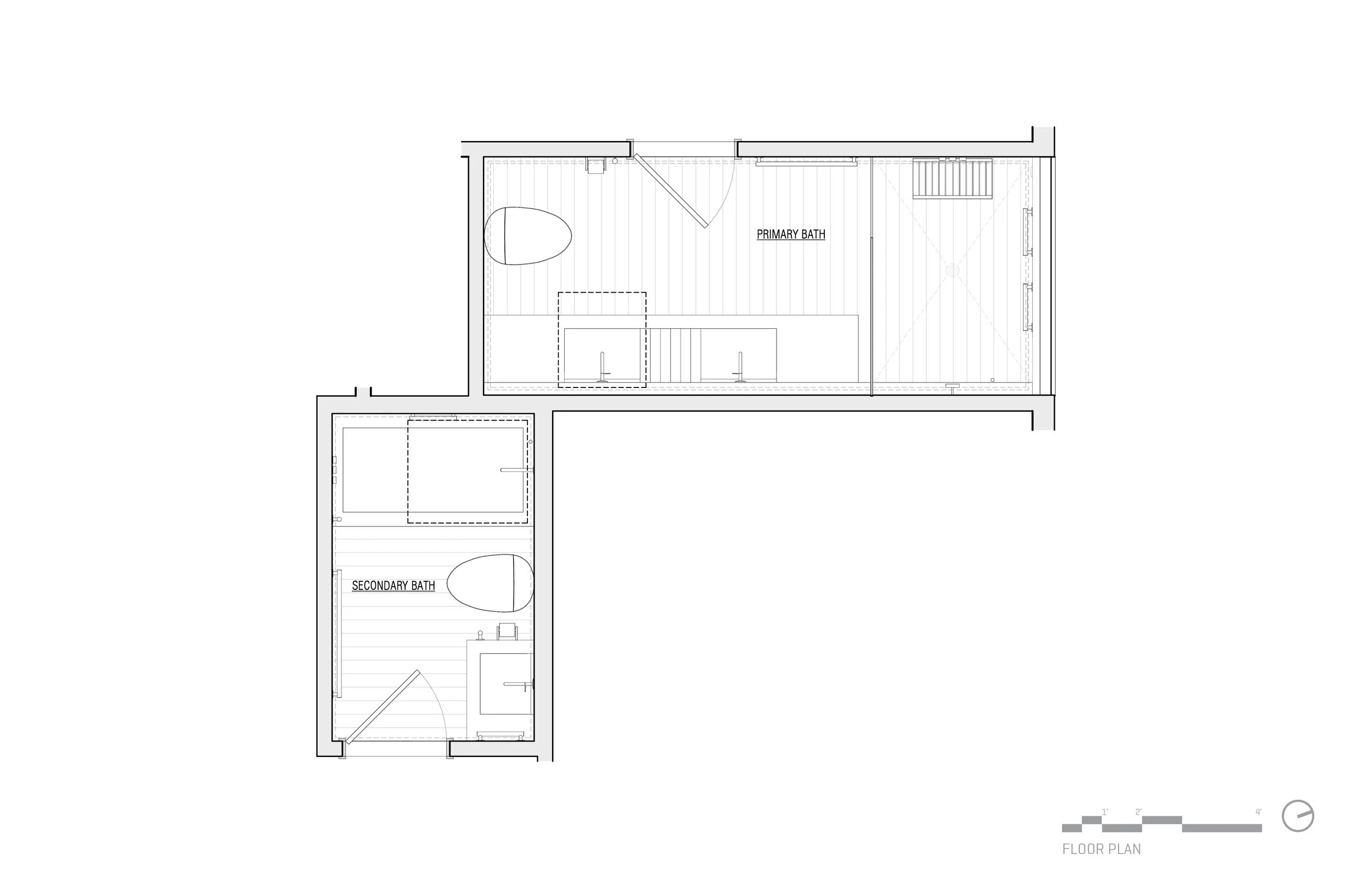
Designed as serene retreats, the renovation of two bathrooms looks upward to the sky and outward to the forest, honoring the spirit of the home’s original owner, world-renowned landscape architect Hideo Sasaki.

Simplicity guided every decision. Lines are pure and uninterrupted, surfaces flow continuously, and details are kept minimal. Fixtures and ceiling elements were concealed or reduced to only what was necessary, allowing view, materials, and light to define a Zen-like experience. Because the renovation was for an aging couple, plumbing fixtures and grab bars were selected for both functionality and a refined, minimal look. Lighting is tucked behind ceiling valances, providing a soft, ambient glow without drawing attention. A single material, waterproof plaster, was used throughout the bathrooms. It wraps walls, sinks, and the built-in bathtub in a warm, seamless finish that removes the visual noise of grout lines. Wood flooring continues into the shower, creating a unified feeling between wet and dry areas, along with the wood vanities, also reinforce the calm, grounded atmosphere.


H I G H L I G H T S 

  • Iroko wood floors and teak millwork

  • Tadelakt plaster walls and vanities

C O L L A B O R A T O R S 

NS Builders | Trowel Inc. Plastering | Materia Millwork | Trent Bell Photography


Schedule a call


More Projects

FREE RESOURCES

Whether you’re building a home, building a business, developing a community, or renovating a historic building, we have a variety of FREE guides tailored to your needs.

SEE ALL RESOURCES